본문 바로가기
News/2022

[Architecture & Culture] 안성 상가주택 반

 

안성 상가주택 반

 

위치: 경기도 안성시 외가천리

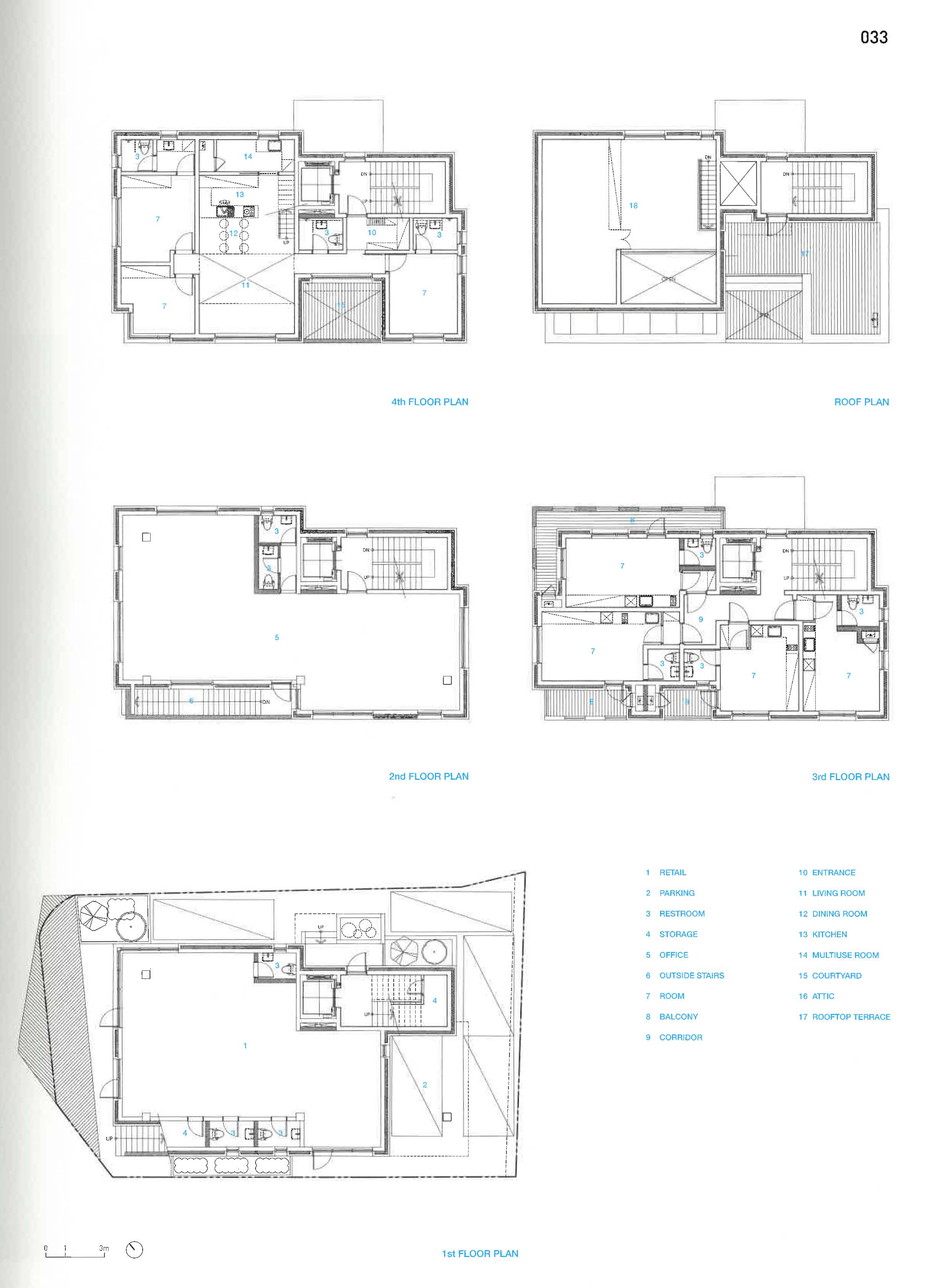
용도: 2종 근린생활시설 + 다가구주택

규모: 지상 4층

대지면적: 325.00

건축면적: 168.29

연면적: 576.79

건폐율: 51.78%

용적률: 177.47%

구조: 철근콘크리트조

주차대수: 5대

사진: 나르실리온 이한울 작가

시공: 미래현건설

설계: 라움 건축사사무소 방재웅 소장, 권혁철 소장

 

▽ 안성 상가주택 반 보러가기