본문 바로가기
News/2020

[Archiworld] 더 라움

 

 

 

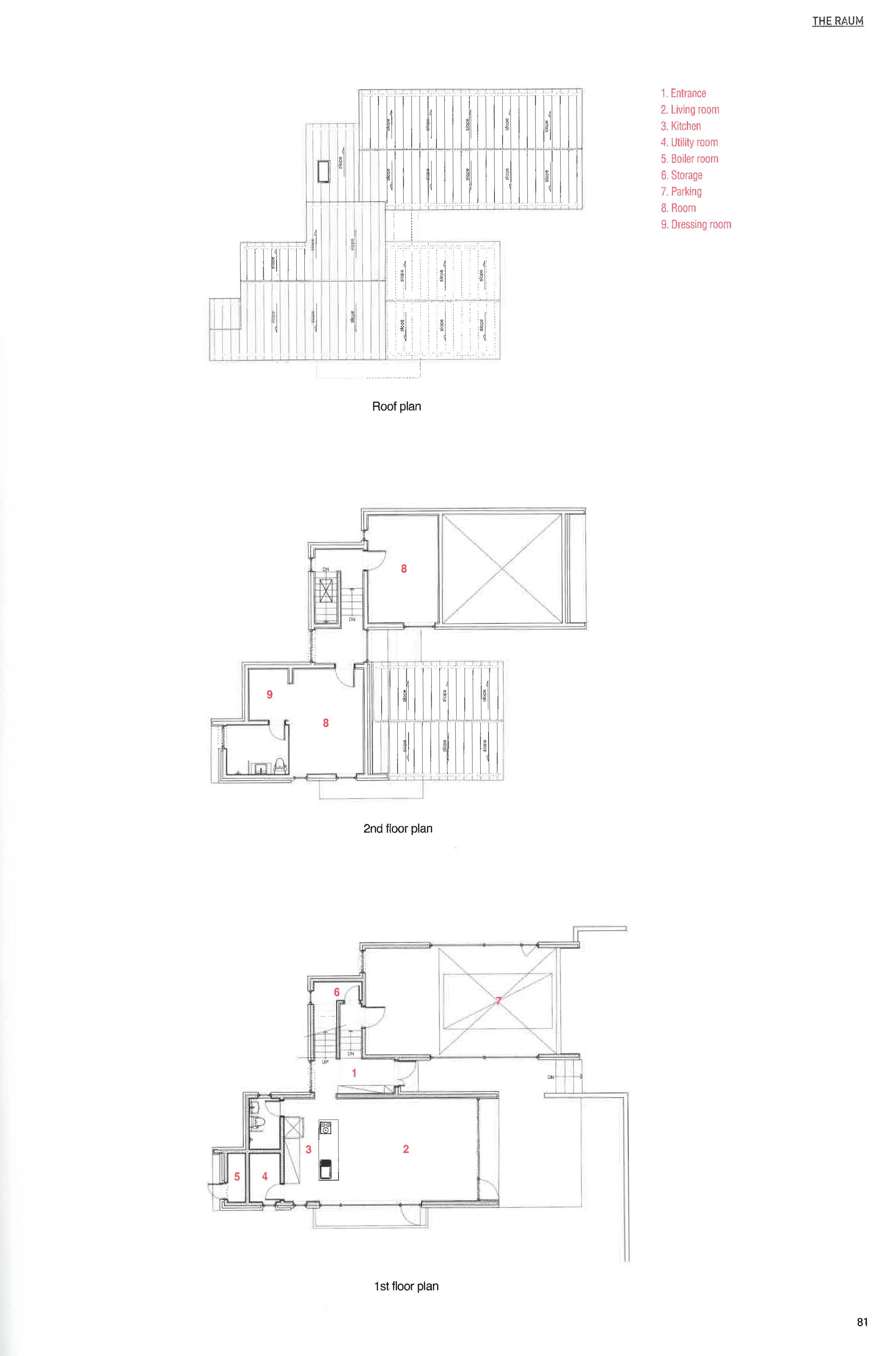
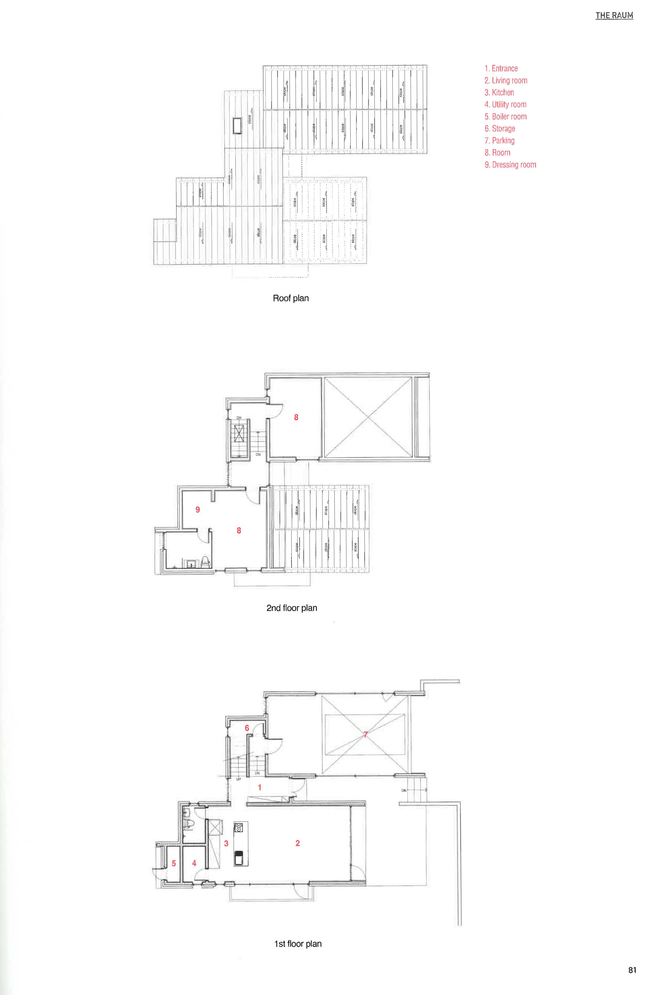
더 라움(The Raum)

대지위치 : 경기도 양평군 용문면 덕촌리

건물규모 : 지상 2층 (스킵플로어 구조 / Skip Floor)

대지면적 : 463.00㎡

건축면적 : 114.51㎡

연면적 : 173.09㎡

구조형식 : 철근콘크리트조

건축설계 : 라움 건축사사무소 방재웅 소장

건축시공 : 건축주 직영

 

▽ The Raum 보러가기