








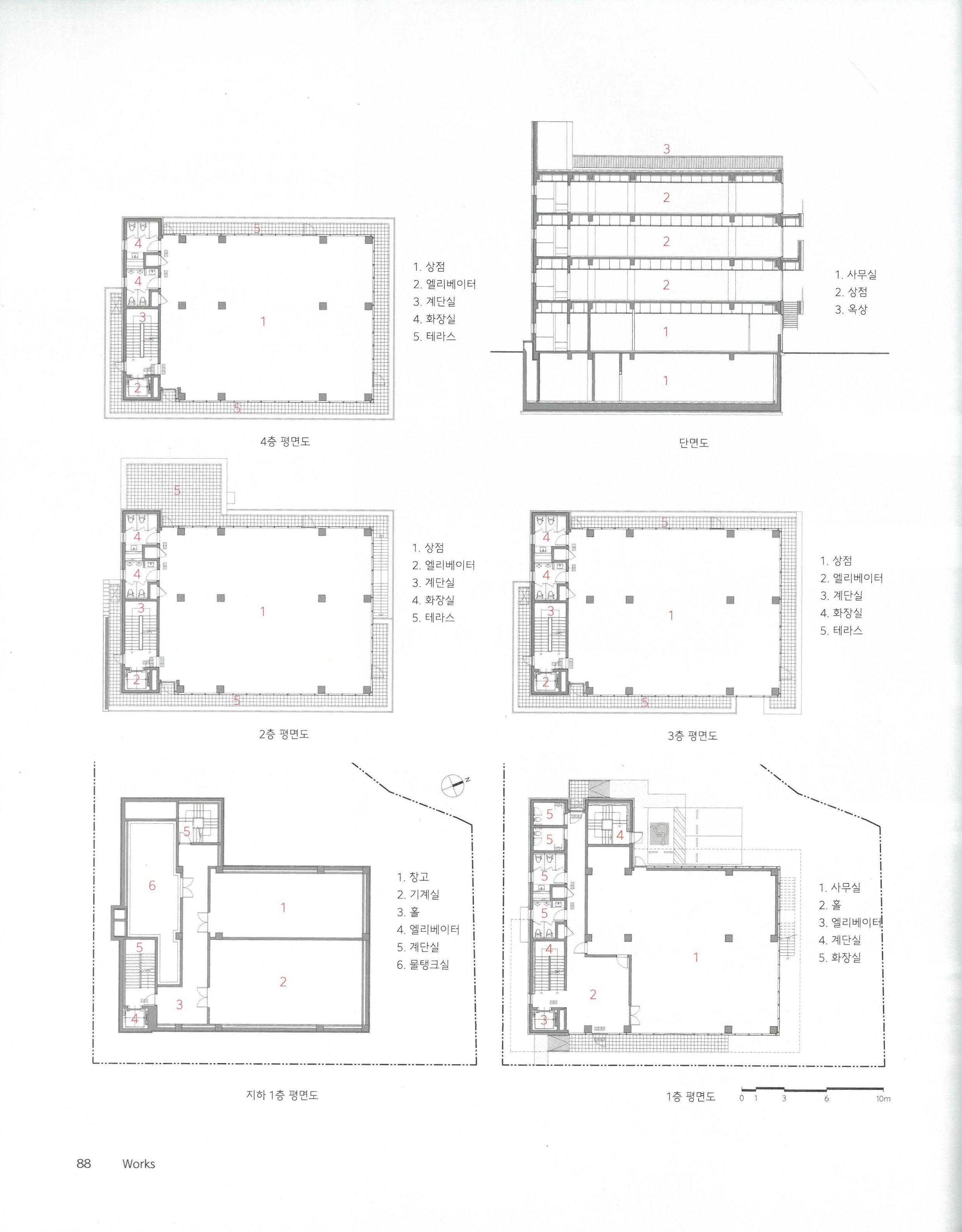
젠가(Jenga)
위치: 경기 양평 양평읍 공흥리
용도: 근린생활시설
규모: 지하1층, 지상4층
대지면적: 1,148.70㎡
건축면적: 462.96㎡
연면적:1,698.56㎡
건폐율: 40.30%
용적률: 122.66%
구조: 철근콘크리트조
주차대수: 13대
사진: 김용수
시공: 주영건설(주)
설계: 라움 건축사사무소
▽젠가 보러가기









젠가(Jenga)
위치: 경기 양평 양평읍 공흥리
용도: 근린생활시설
규모: 지하1층, 지상4층
대지면적: 1,148.70㎡
건축면적: 462.96㎡
연면적:1,698.56㎡
건폐율: 40.30%
용적률: 122.66%
구조: 철근콘크리트조
주차대수: 13대
사진: 김용수
시공: 주영건설(주)
설계: 라움 건축사사무소
▽젠가 보러가기