
공흥리 새마을금고 '젠가 Jenga'
대지는 대로변에 위치해 접근이 용이하며, 주변 건물들이 1~2층으로 낮게 형성되어 있어 조망 확보에 유리한 조건을 갖추고 있다. 또한 높이 올라갈수록 용문산 조망이 가능하다. 이러한 대지조건을 모두 고려했을 때, 높은 층에서 외부를 조망할 수 있도록 계획하는 것이 무엇보다 중요했다.
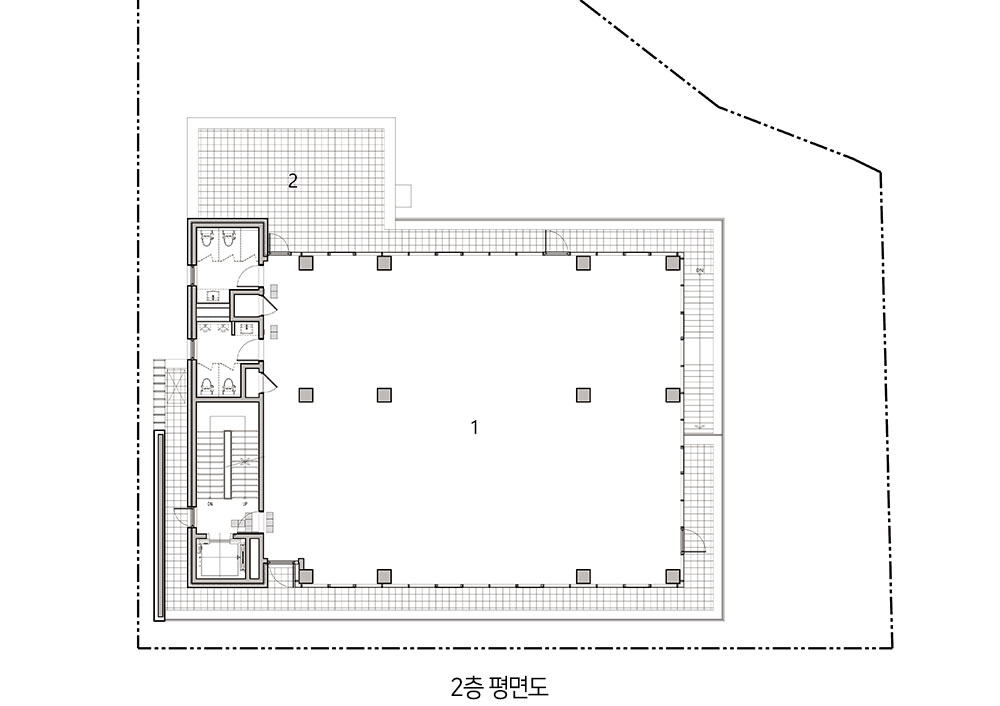
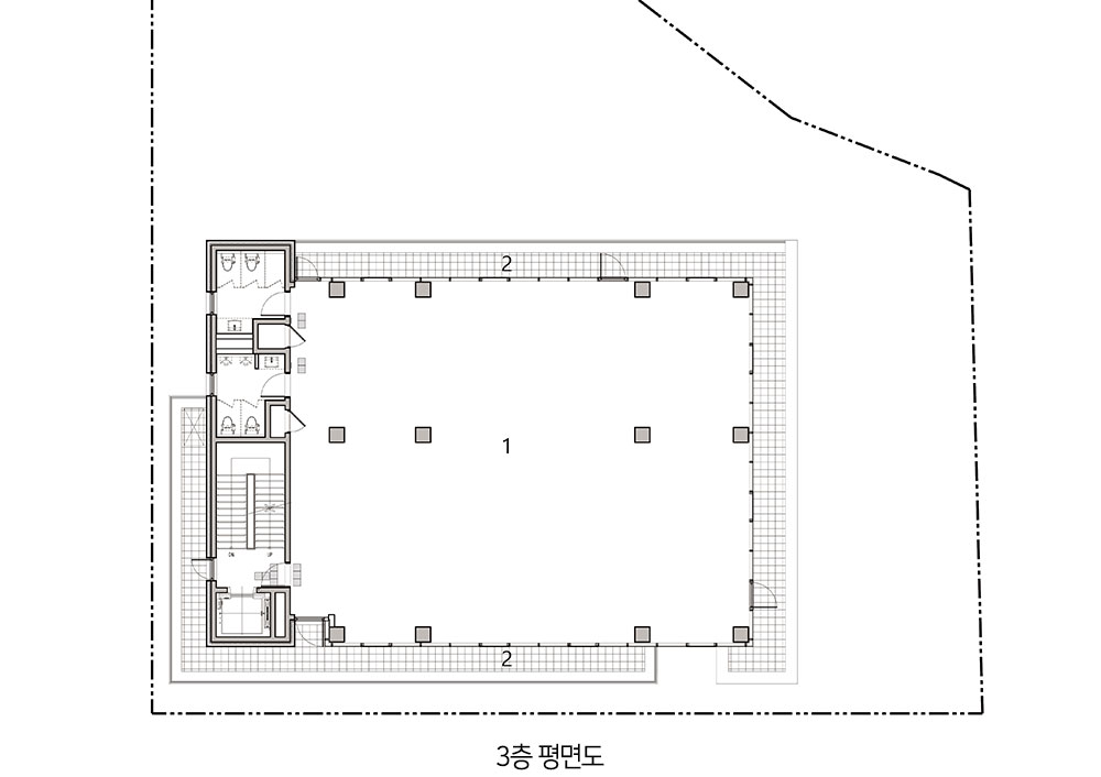
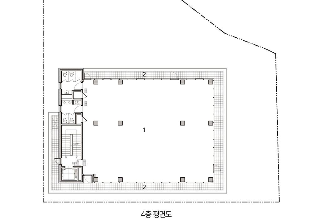
전면부에는 대로변에서 차량과 보행자의 접근이 용이하도록 남동향으로 길게 배치하고, 차량의 진입도로가 대지와 제일 가깝게 하여 주차장을 건물 뒤편에 배치했다. 또한 근린생활시설 용도로 사용할 건물이기에 테라스 쪽에 2층 상가로 바로 진입할 수 있는 동선을 만들어 업무시설과 상가 동선을 분리하였다.







대지 여건상 조망이 좋은 방향은 용문산 뷰가 가능한 북동향이다. 따라서 테라스를 각 층별로 길게 배치하여 용문산 조망 시간을 확보할 수 있도록 계획했다. 그리고 디자인 메인 전략인 테라스의 장방향 배치를 위해 건축이 가능한 형태에서 테라스에 필요한 공간의 크기만큼 덜어내는 방식으로 진행했다. 결과적으로 건물을 두르는 띠 형태로 테라스를 디자인하게 되었고, 내부는 외부에서 인지하기 쉽고 개방감을 주는 커튼월을 사용하였다. 이처럼 건축할 수 있는 형태에서 테라스를 위한 공간을 덜어내는 방식을 사용하는 것이 디자인 주안점이라 생각되어 건물의 이름을 ‘젠가’로 짓게 되었다.











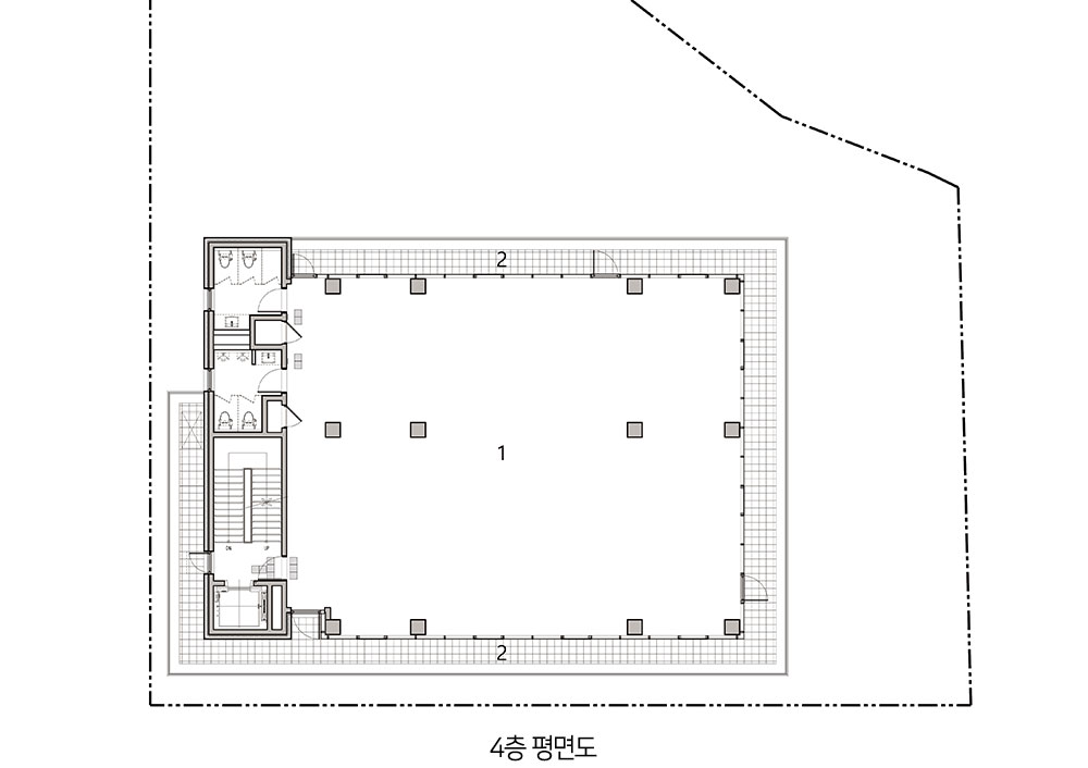
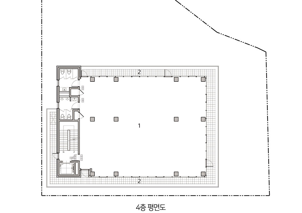
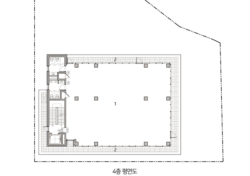
각 공간으로의 진입은 건물의 각 층별로 진입이 가능한 진입부와, 은행으로 바로 진입 가능한 출입문, 2층 테라스로 진출입이 가능한 외부계단까지 총 세 군데가 있다. 각 층은 하나의 프로그램만 사용하기 때문에 벽으로 구획되지 않고, 넓은 공간으로 계획했다. 층별 프로그램이 근린생활시설이라 외부인의 출입이 잦기 때문에 방문자들도 테라스를 이용할 수 있도록 커튼월의 여러 군데에 출입문을 두었다. 출입구의 수가 늘어난 만큼 건물의 특징인 테라스 공간을 누구나 자유롭게 사용할 수 있도록 하였다.








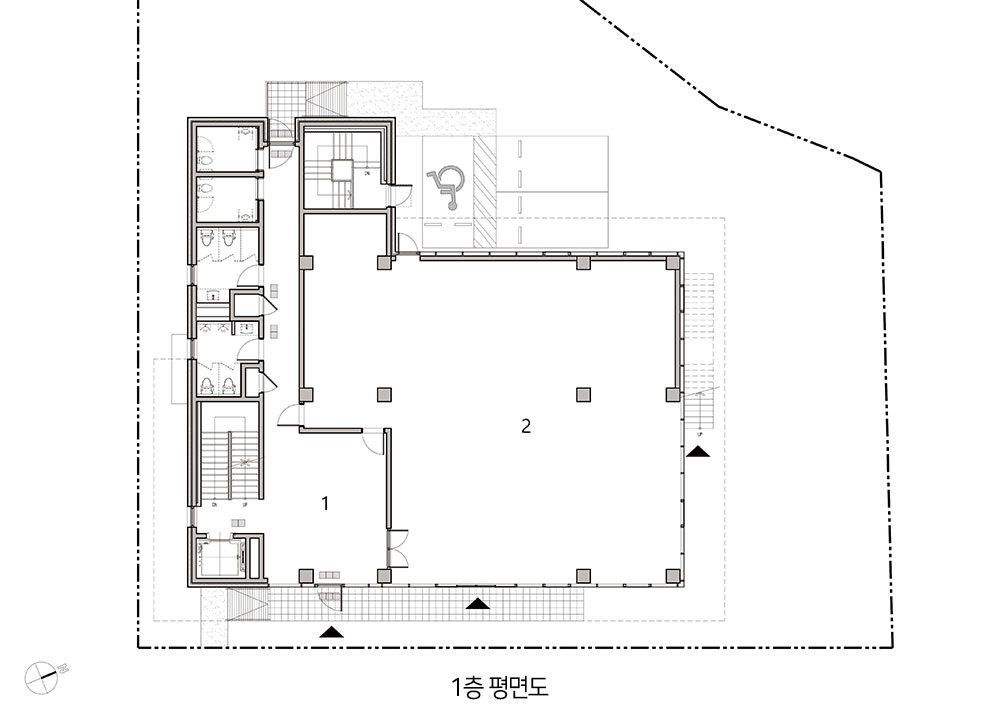
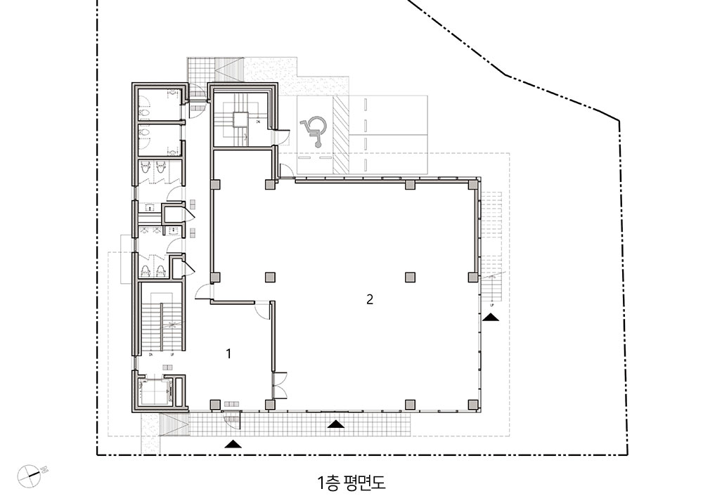
① 홀 ② 업무시설 (은행)

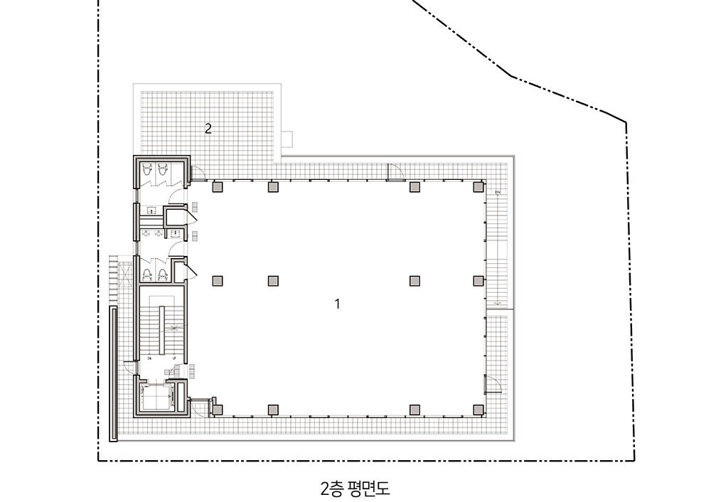
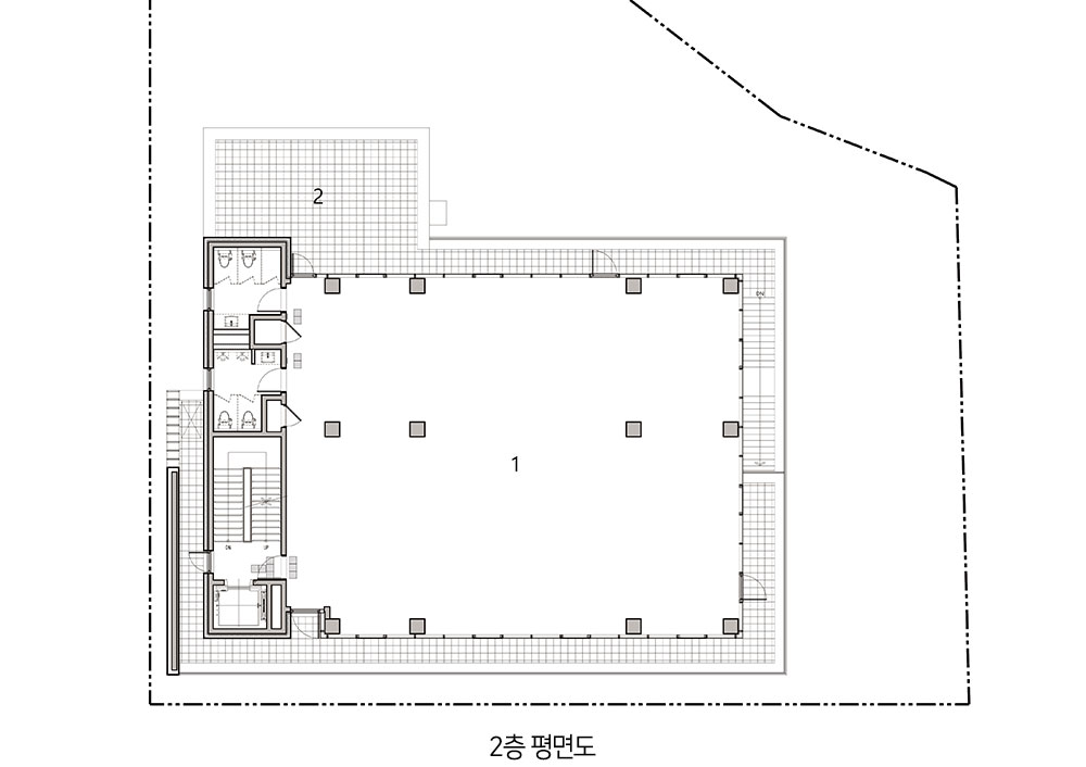
①상가 ② 테라스

①상가 ② 테라스

①상가 ② 테라스

B2-1F 오피스 / 2 - 4F 상가 / RF 옥상
위치: 경기도 양평군 양평읍 공흥리 595-4
용도: 근린생활시설
규모: 지하1층, 지상4층
대지면적: 1,148.70㎡
건축면적: 462.96㎡
연면적: 1,698.56㎡
건폐율: 40.30%
용적률: 122.66%
구조: 철근콘크리트조
주차대수: 13대
사진: 김용수
시공: 주영건설(주)
설계: 라움 건축사사무소