
다산 상가주택 "듀오"
듀오는 건축주 가족과 장인, 장모님이 함께 사는 상가주택이다. 인테리어업을 하는 건축주는 이 집을 짓기 위해 많은 설계사무소에서 상담을 진행했고, 최종적으로 우리와 계약해 프로젝트가 시작되었다. 아파트에서만 거주하던 건축주는 자녀를 키우기 좋은 환경을 갖춘 대지를 찾았고, 수익성 분석 끝에 합리적인 주택을 지을 수 있겠다는 결론을 내 부모님과 함께 거주할 상가주택을 짓기로 결심했다고 한다.
일반적인 상가주택은 각 세대가 층으로 구분되어 있고, 주인 세대와 임대 세대를 최상층과 아래층으로 구성하는 형식이다. 그러나 건축주는 부모님 세대까지 2세대만 거주할 단독주택 같은 상가주택을 원했고, 이를 위해 각 세대의 거주 패턴과 공간 활용 등이 고려된 설계안을 요청했다.



대지는 경사진 도로에 접해 정면은 도로, 후면은 공원을 바라보고 있다. 두 지점에 약 1.5m 정도 높이차가 있어 대지 내 성절토를 최소화하기 위해 평균 높이를 기준으로 주차와 1층 높이를 결정해야 하는 상황. 신도시 상가주택은 대부분 각 필지별 높이, 마감, 최대 세대수 등 제약조건에 맞춰 신축되기 때문에 일조와 설계 당시 주변 건축물에 따라 설계 방향이 결정될 수 있다. 우리 또한 현재 대지 조건에 맞추어 디자인을 진행하게 되었고, 특히 공원과 도로 쪽에 펼쳐진 원경을 담고자 했다.




각층에 여러 세대나 임대 세대가 구성되는 형태가 아닌 주인 세대 2세대가 함께 사는 주택이다 보니, 자연스럽게 일반적인 상가주택과 다른 공간구성이 만들어졌다. 우선 일반 상가주택의 경우 최상층에만 적용되던 테라스를 2세대에 모두 적용해 실외 공간 활용이 가능하도록 했고, 층간 오픈이나 최상층 층고 조정을 통해 기존 공동주택에서는 어려웠던 높은 층고를 확보했다.





2층과 3층을 사용하는 건축주 세대의 어린 자녀들이 층간소음 걱정 없이 뛰어놀 수 있도록 필로티 부분에 주 생활공간인 거실과 주방을 두었고, 공원 쪽을 바라보는 방들은 정적인 활동이 가능하도록 프라이빗한 공간으로 구성했다.







부모님 세대의 경우 2인 거주 공간에 맞추어 평면을 구성하였다. 개방감 있는 창호와 높은 천정고 등을 통해 기존 거주 주택보다 작지만, 활용성 좋은 공간으로 만들었다. 이에 더해 최상부에는 외부 테라스와 다락 공간을 배치해 옥상 공간의 활용성과 접근성을 높였다. 옥상 공간은 2세대가 만나 이야기를 나눌 수 있는 커뮤니티 공간이 될 것이다.



다른 상가주택과 달리 세대수가 적어 주차 공간의 여유가 생겼고, 이를 통해 상가 면적을 비교적 크게 배분할 수 있었다. 더불어 상가의 경우 후면의 공원 뷰를 볼 수 있도록 통창과 폴딩도어를 두어 편의성과 함께 개방감을 확보할 수 있었다.
인테리어업을 하는 건축주이다 보니 공사 중 마감재의 변경이 많았고, 건축법과 인테리어 마감 사이에서 다양한 대안을 검토하고 고민하면서 한땀한땀 공사가 이루어졌다. 비록 공사 기간이 다른 상가주택에 비해 2개월 이상 더 소요되었지만, 그 모든 것들이 좋은 건축물을 만들어내기 과정이었다고 생각될 만큼 만족스럽게 마무리한 프로젝트이다.





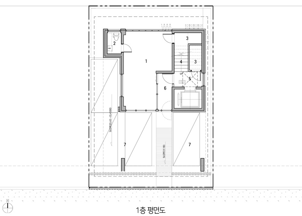
① 상가 ② 화장실 ③ 창고 ④ 계단실 ⑤ 홀 ⑥ 현관 ⑦ 주차장

① 현관 ② 창고 ③ 거실 ④ 주방&식당 ⑤ 다용도실 ⑥ 화장실 ⑦ 방 ⑧ 계단실

① 방 ② 드레스룸 ③ 화장실 ④ 창고 ⑤ 발코니 ⑥ 가족실

① 현관 ② 방 ③ 드레스룸 ④ 화장실 ⑤ 다용도실 ⑥ 주방 ⑦ 식당 ⑧ 거실

① 다락방 ② 루프탑 테라스
위치: 경기도 남양주시 다산동
용도: 상가주택 (다가구주택+근린생활시설)
규모: 지상4층
대지면적: 198.00㎡
건축면적: 112.7.89㎡
연면적: 354.04㎡
건폐율: 56.92%
용적률: 178.81%
구조: 철근콘크리트조
주차대수: 4대
사진: 나르실리온 이한울
시공: The Wells Germany Inc
설계: 라움 건축사사무소
【 SBS 좋은아침 하우스 '한 지붕 아래 두 가족' 방영 】
