
인천 청라동 단독주택 'TED House'
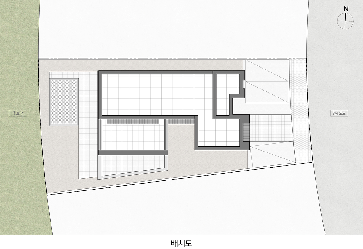
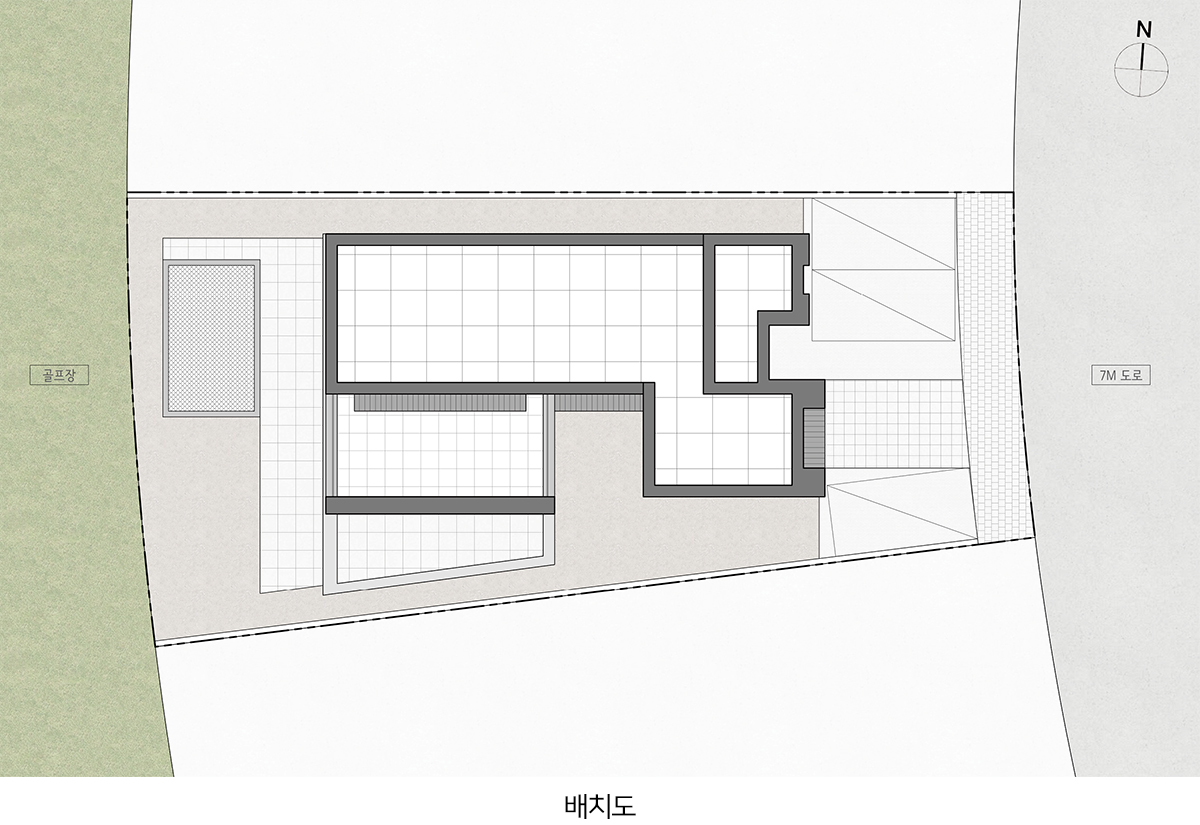
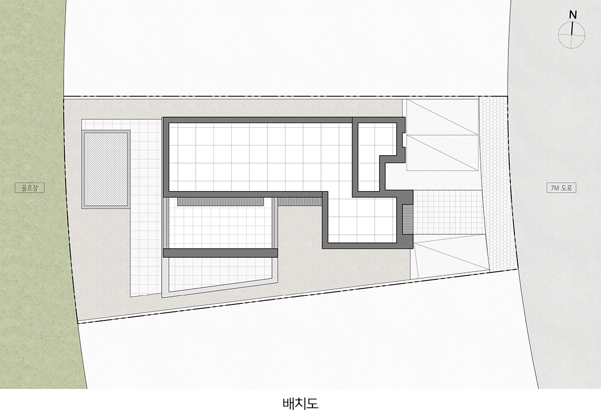
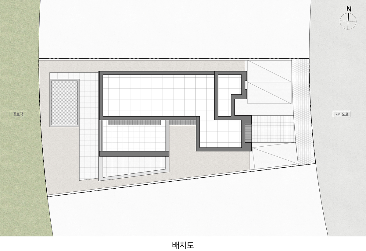
새로운 기술 도입을 통해 주택의 문제점을 극복하기를 바랐던 건축주는 가족들에게 완벽한 주택을 선물하고자 했다. 자녀들이 성장하면서 공간의 활용이 달라질 것을 고려한 가변적 공간과 더불어 단열과 결로, 그리고 방수, 소음에 강한 주택을 요청했다. 골프장 내 주택 필지인 대지 동측은 폭 7m의 진출입 도로가, 서측은 골프장 부지가 자리한다. 골프장과 접한 면이 비교적 좁고 긴 형태인 대지는 남북 방향으로 인접한 대지와의 프라이버시를 고려하면서 일조 및 채광까지 확보하기 위한 고민이 필요했다.


먼저 접근성이 좋은 1층엔 공용공간인 거실과 주방, 식당을 배치하고, 2층은 자녀들을 위한 방 2개와 게스트룸, 3층은 가장 프라이빗한 부부의 마스터룸으로 공간을 구성했다. 이러한 층별 구성을 바탕으로 사용자의 생활방식에 맞춰 배치를 결정하고, 각각의 공간 규모에 맞게 채광을 확보할 수 있도록 계획했다.









에너지 절감과 중정을 효과적으로 조성하기 위해 남쪽 면을 최대로 확보하였고, 이와 동시에 내부 실과 공용공간이 외부에 직접 노출되지 않도록 계획했다. 복도 공간은 직접 노출되지 않고, 주택 내에서 중정의 역할을 할 수 있도록 높은 조경과 가족의 추억이 담긴 오브제를 배치하여 단순한 정원이 아닌 가족의 공간이 되도록 구성했다. 결과적으로 이 공간은 적절한 채광과 차폐 효과를 동시에 갖춘 하나의 켜가 되었다.



거실에는 음악을 전공한 아내를 위해 피아노를 배치하고, 그에 맞는 음향 공간을 구성하였다. 또한, 자녀들을 위한 트램펄린, 수영장 등 야외공간과의 연결을 통해 아이들이 활동적인 놀이를 즐길 수 있도록 구성하여 거실이 가족들의 모임공간이자 중심공간의 역할을 하도록 했다.





자녀 방은 동향 또는 서향으로 배치하였고, 아이들이 성장하면서 공간 활용이 달라질 것을 고려하여 맞붙은 두 방을 추후 하나의 큰 공간으로 사용할 수 있도록 해체 가능한 건식 벽체로 계획했다.



부부를 위한 3층 마스터룸의 테라스는 남향으로 조성하고, 프라이버시 보호를 위해 벽체를 올린 후, 액자 형태의 프레임을 두어 프라이버시와 개방감을 모두 확보하였다.


건물의 입면은 외벽과 창호 면적을 늘려 남향의 채광을 확보하였고, 인접 대지와의 프라이버시를 고려하여 루버 및 타공 패널, 슬라이딩 벽체 등 다양한 차폐 요소를 접목했다. 또한, 다양한 기술 요소를 반영하기 위한 지열냉난방 배관, 방송설비, 가스 배관, 빗물 저류 공간 등의 설비 공간과 주택 공간을 효율적으로 배치하고자 평면과 입면에 대해 고민하며, 덕트 공간과 점검 공간을 최적화했다.












위치: 인천광역시 서구 청라동
용도: 단독주택
규모: 지상 3층
대지면적: 434.61㎡
건축면적: 129.60㎡
연면적: 315.36㎡
건폐율: 29.82%
용적률: 72.56%
구조: 철근콘크리트조
주차대수: 3대
사진: 장영수
시공: (주)아키웍스
설계: 라움 건축사사무소