
인천 청라동 단독주택 'The House on Green'
사업가로서 아파트에 주로 거주했던 60대 부부 건축주는 은퇴 후 삶을 즐길 수 있는 처음이자 마지막 주택을 계획하고 있었다. 단순히 일상생활을 위한 공간 뿐 아니라 지인과의 모임, 취미 생활까지 수용하는 ‘삶의 중심’인 보금자리를 바랐던 건축주. 은퇴 이후의 삶을 고민하고 ‘쉼’을 주제로 호텔처럼 편안함과 고급스러움을 동시에 갖춘 공간 그리고 노년의 삶을 고려한 안전한 설계를 요청했다.




골프장 내 주택 필지인 대지 서측으로는 골프장 부지가, 동측으로는 진입도로가 자리한다. 세장한 형태에 비슷한 조건의 필지가 나란히 배치되는 주택단지 특성상, 규모가 비슷한 이웃 주택과의 프라이버시를 고려하면서 엇비슷한 형태 또는 외관에서 벗어나기 위한 고민이 필요했다.

주거로서의 일상적인 공간이자, 모임 등과 같은 활동이 일어나는 사회적인 공간의 역할도 수행하는 집. 게스트를 위한 오픈된 공간과 내밀한 개인 공간, 전혀 다른 성질의 공간이 요구되는 만큼 우리는 단조로운 디자인에서 벗어난 의외성 있는 건축을 고민했다. 공간을 구성하는 방식과 재료 사용 방식으로 개성을 드러내려 했고, 다양한 모습의 ‘쉼’이 있는 공간을 연출했다.


외부에선 도로변이나 마당 쪽으론 드러나지 않는 프라이빗한 중정을 배치해 비교적 작은 면적의 실내 공간에 개방감과 시각적 즐거움을 주었다.











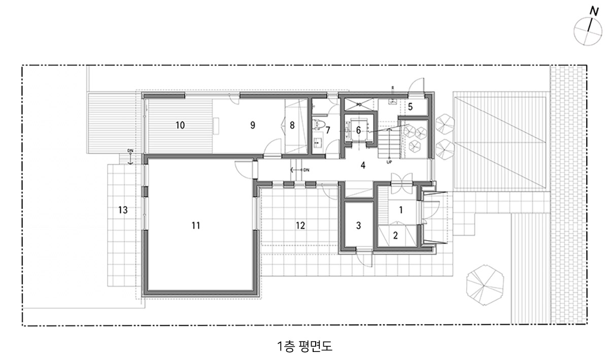
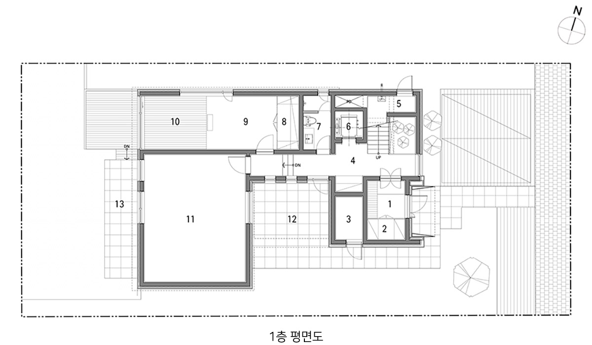
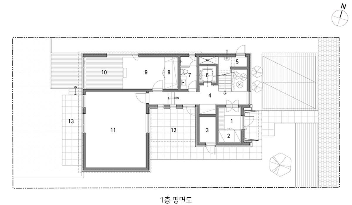
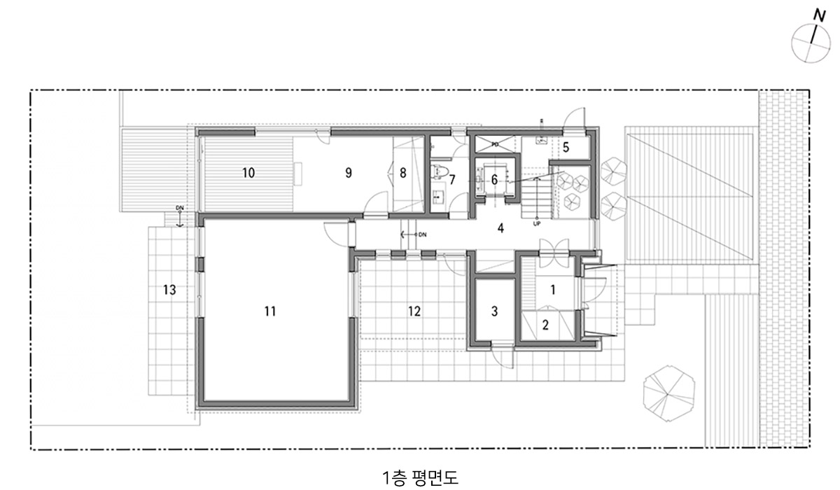
첫 번째 의외성은 공간 구성에서 드러난다. 2층 이상 규모의 단독주택에선 보통 거실·주방·식당(L·D·K)의 공용 공간이 접근성 좋은 1층에 배치되지만, 이 프로젝트의 경우 중간층인 2층에 L·D·K 공간을 계획했다. 2층에서 보다 높은 곳의 전망을 누리는 이점을 적극적으로 활용하기 위해 멀리언을 최소화한 폭넓은 창호를 계획하여 개방감을 극대화하였다. 또한 불리한 접근성은 건물 내 엘리베이터로 해소해주었다.





지인들과 취미를 공유할 수 있는 스크린 골프장은 짐의 이동을 최소화할 수 있도록 1층에 두었고, 골프장과 연계되는 마당을 통해 스크린 골프 이후 파티 공간으로 확장 가능하도록 계획했다. 더불어 이곳을 엔터테인먼트 룸으로도 사용할 수 있도록 영상 및 음향 장비를 설치해 공간의 활용성을 높였다. 3층은 건축주 부부만의 개인 공간이다. 가장 활동적인 1층과 가장 정적인 3층 마스터룸 사이에 자리한 모임 공간은 완충공간으로서의 역할을 수행하게 된다.


두 번째 의외성은 다양한 재료를 활용한 입면 디자인으로, 외부 마감재를 이용해 집의 중심 공간인 2층을 강조했다. 흰색 석재 바탕 위로 짙은 회색 석재를 돌출시켜 입체감을 부여함과 동시에 내부 공간에서 사용자의 시야를 확장시키며 공간의 중요도를 외부로 드러내는 방식이다. 또한 남측 벽면을 따라 일정한 높이의 목재와 창호를 반복 배치하여 리듬감을 주어 자칫 단조로울 수 있는 입면의 변주를 꾀했다. 석재 마감과 달리 채도가 높은 노란색으로 도장 처리한 현관 측 프레임은 건물 정면 도입부에 색다르면서도 강한 인상을 심어준다.












위치: 인천광역시 서구 청라동
용도: 단독주택
규모: 지상 3층
대지면적: 442.40m²
건축면적: 130.32m²
연면적: 282.66m²
건폐율: 29.46%
용적률: 63.89%
구조: 철근콘크리트조
주차대수: 2대
사진: 장영수
시공: (주)정담건설
설계: 라움 건축사사무소