본문 바로가기
CM Works

극한환경실험동 증축공사

투시도

 

사업개요
현황분석
현황분석

 

 

배치도
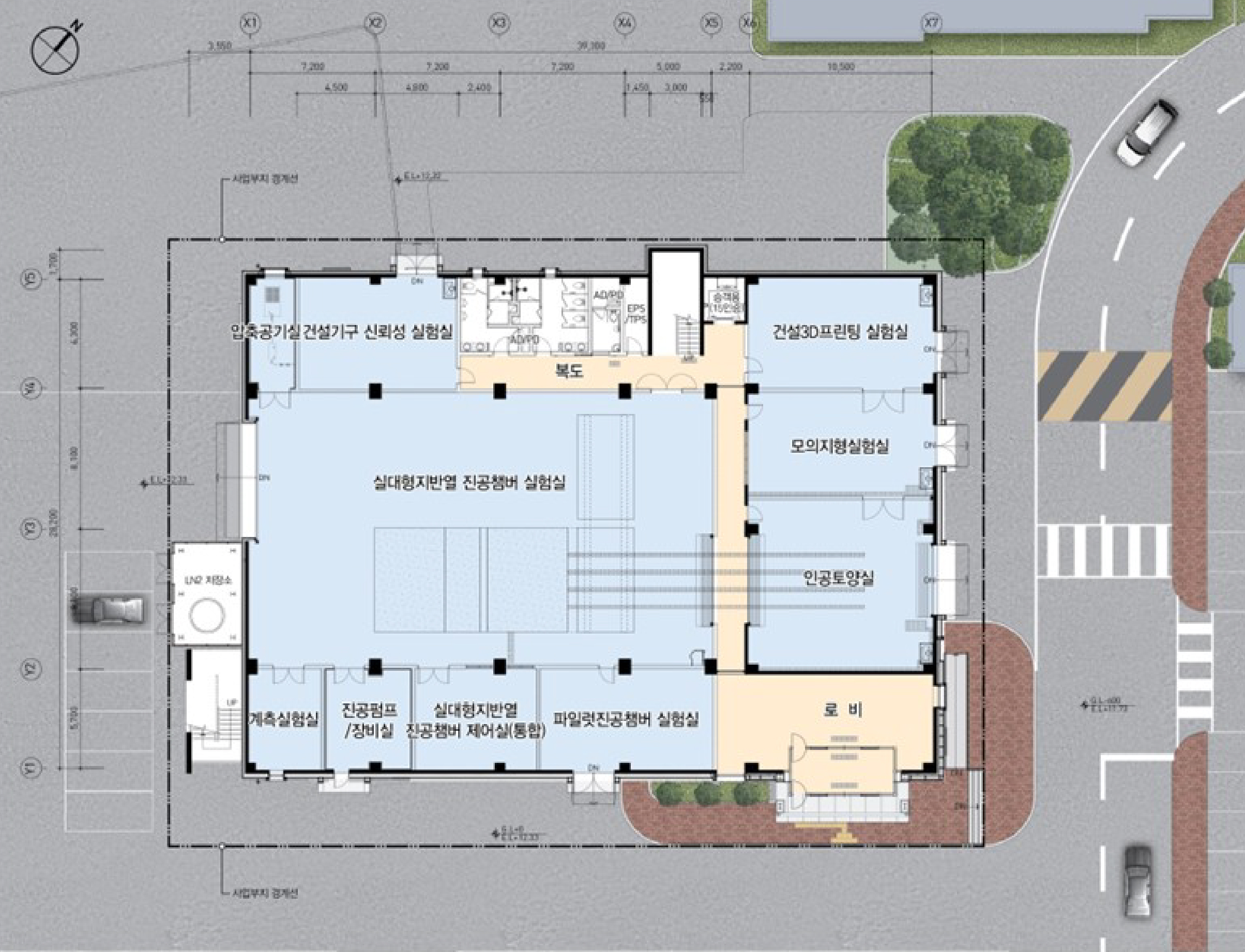
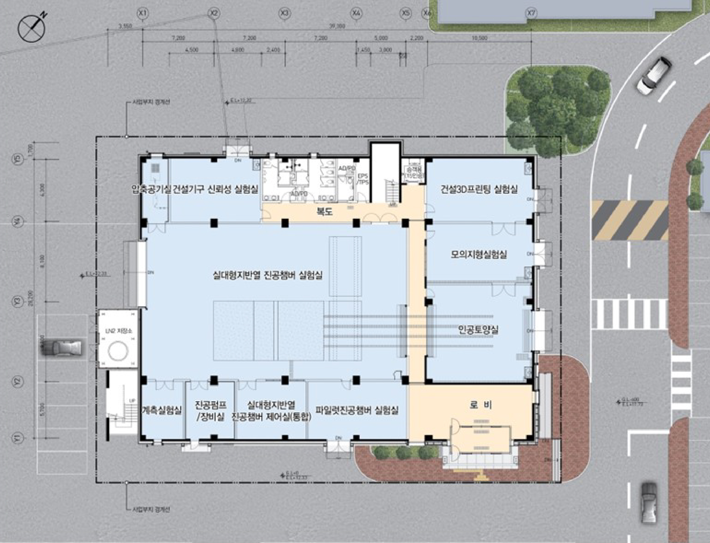
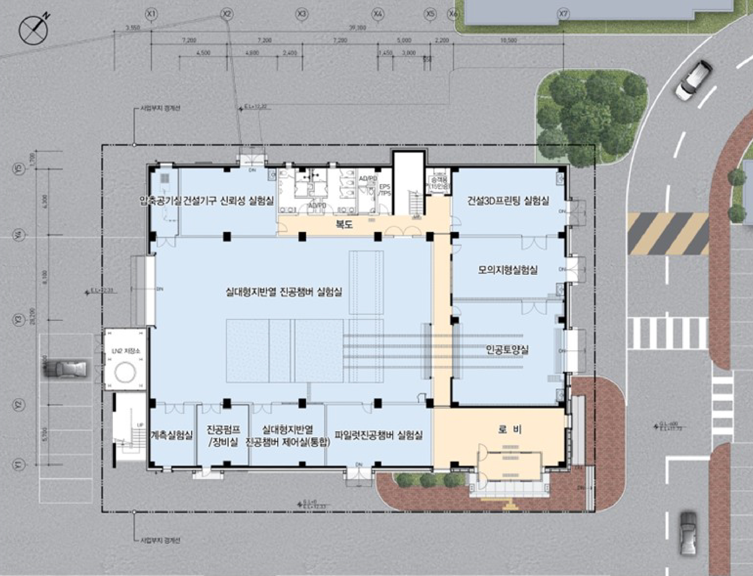
지상1층 평면도
지상2층 평면도
지상3층 평면도

 

 

사업명 : 극한환경실험동 증축공사 감리 용역

발주처 : 한국건설기술연구원 (KICT)

감리자 : 라움 건축사사무소